Welkom, bij Hermanus Coenradistraat 8 - 1
1063 XR, Amsterdam
€370.000 K.K.































Wat maakt deze woning uniek?
English below
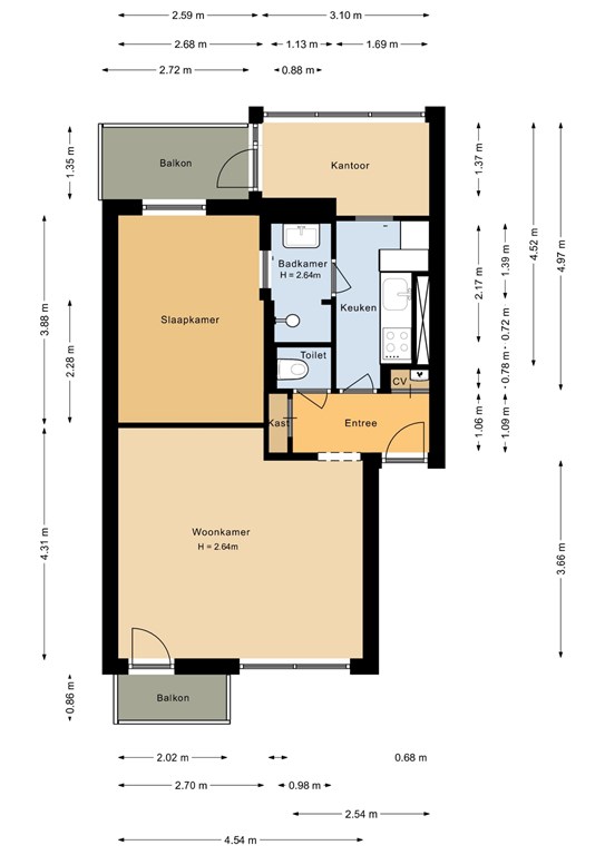
Welkom bij dit moderne en instapklare 3-kamerappartement aan de Hermanus Coenradistraat 8-1. Gelegen op de 2e verdieping vind je deze slim ingedeelde en licht afgewerkte woning van circa 47,5 m², inclusief een berging van circa 2,5 m².
De woning is de afgelopen jaren vernieuwd en beschikt over een strakke keuken (2024), een moderne badkamer (2023) en een nieuw toilet (2025). Dankzij de efficiënte indeling biedt het appartement een ruime woonkamer, een volwaardige slaapkamer en een extra kamer die perfect is als werk-, logeer- of
Samengevat
Type
Apartment
Bouwjaar
1953
Wonen
48 m²
Kamers
2
Slaapkamers
2
Bekijk alle kenmerken van deze woning
Overdracht
Vraagprijs€370.000 K.K.
Vraagprijs per m²€7.708,33
StatusBeschikbaar
AanvaardingIn overleg
Bouwjaar
Soort woningMezzanine, Appartement
Bouwjaar1953
Aangeboden sinds25-03-2026
Waar kom ik straks te wonen?
Loading Map…
Hoe duurzaam is deze woning?
Deze woning heeft energielabel: C
Woningen met een energielabel C zijn in de meestal geïsoleerd, maar het kan beter. Controleer ook gelijk of de beglazing gemoderniseerd kan worden. Zijn deze punten al opgepakt? Dan is het raadzaam om te onderzoeken of duurzame energiebronnen zoals zonnepanelen geplaatst kunnen worden.
Type isolatieDubbel glas
VerwarmingsinstallatieWaterverwarmer
Warm waterWaterverwarmer
Energielabel geldig tot09-03-2026
Hoe werkt het verkoopproces?
Stap 1: Bekijk de woning
Al geïnteresseerd in deze woning? Plan direct een bezichtiging via de onderstaande knop.
Plan een bezichtigingBestudeer de stukken
Plaats een bod
Gunning
Vrijgave Biedlogboek
Stap 2: de stukken bestuderen
Voorafgaand aan de bezichtiging is het aan te raden om alle stukken goed te bestuderen als onderdeel van de onderzoeksplicht.

Stap 3: een bod uitbrengen
Is dit de volgende droomwoning? Breng dan eenvoudig digitaal een bod uit in het Biedlogboek van Eerlijk Bieden

Veelgestelde vragen
Wanneer kan de notariële overdracht van Hermanus Coenradistraat 8 plaatsvinden?
De verkopers van Hermanus Coenradistraat 8 hebben de volgende voorkeur voor notariële overdracht aangegeven: Zo snel mogelijk.
Is er parkeergelegenheid in de buurt van Hermanus Coenradistraat 8?
In de buurt van Hermanus Coenradistraat 8 zijn de volgende parkeermogelijkheden beschikbaar: Openbare parkeerplaats.
Contact met de makelaar
_17_05_2024-09-34-54.png?returnFile=true)
NJOY Makelaar
Vragen aan de makelaar over dit pand of wilt u direct een bezichtiging plannen? Gebruik dan het bijgevoegde contactformulier.
Hoe kunnen wij u van dienst zijn?
Misschien vindt u deze woningen ook interessant?

Waterwijzer
8224 AS Lelystad
€405.000 K.K.

Tapirstraat
1338 JN Almere
€480.000 K.K.

Cannenburch
8226 RR Lelystad
€600.000 K.K.